Sistem de alimentare cu combustibil
Tenor Low Carbon New Energy Technology (Liaoning) Co., Ltd. a fost fondată în 2021, compania este situată în Dalian City, Dalian University of Technology Industrial Incubation Park, baza de producție este situată în Yantun, Paoai Village, Wafangdian City, Liaoning Provincie. Compania noastră acoperă o suprafață totală de 500,000 metri pătrați, peste două sute de angajați, cu active fixe de 500 de milioane de yuani, peste 400 de seturi de echipamente majore de producție, prelucrare, nituire și sudare, turnare, asamblare și alte ateliere de producție, cu două avansate. Compania are două linii de producție avansate de turnare Disha în Danemarca, care sprijină echipamente automate de sferonizare automată și echipamente de monitorizare spectrală, iar calitatea produselor este la cel mai bun nivel în China.
Activitatea principală a companiei include proiectarea, producția, dezvoltarea tehnologiei și vânzările de seturi complete de echipamente de tratare a incinerării deșeurilor, compania a cooperat de mult timp îndeaproape cu Institutul de Tehnologie Harbin, Universitatea de Tehnologie Dalian, Universitatea de Știință și Tehnologie Nanjing și alte universități renumite. , cu suport tehnic profesional de încredere, echipă de proiectare cu experiență, pentru a oferi clienților produse de înaltă calitate.

01
Calitate superioară
02
AvansatEchipamente
03
Echipa profesională
04
Serviciu personalizat
Descrierea produselor
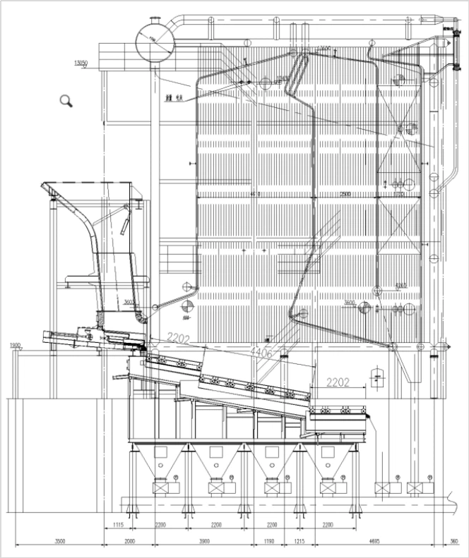
Sistemul de alimentare constă din buncăr și alimentator, poarta internă a buncărului, poarta pentru a asigura etanșarea în același timp pentru a ține cont de funcția de rupere a podului, în grupurile de gunoi pod blocat buncăr prin mișcarea porții pentru a realiza podul. Alimentatorul și poarta sunt conduse de cilindri pentru a împinge o anumită cantitate de gunoi în incinerator prin mișcări periodice de împingere și tragere alternativă, iar alimentatorul poate regla viteza de alimentare în funcție de sarcina incineratorului.


Ce este sistemul de alimentare cu combustibil?
Sistemul de alimentare cu combustibil este o componentă critică a funcționării cazanului și a procesului de producere a energiei. Un flux constant de combustibil facilitează controlul mai ușor al procesului de ardere. Există diferite tipuri de sisteme de alimentare cu combustibil în funcție de dimensiunea și tipul centralei electrice.
Sisteme de alimentare cu combustibil
Alimentarea constantă și continuă cu combustibil în instalațiile de transformare a deșeurilor în energie este cheia pentru o funcționare stabilă, o eficiență maximă și un nivel mai scăzut.costurile operaționale și de întreținere.
Nu este necesar un tratament prealabil
În instalațiile noastre de transformare a deșeurilor în energie, nu este nevoie să pretratăm deșeurile. Acest lucru nu numai că economisește timp, dar reduce și costurile operaționale și de întreținere.


Producție de energie constantă
Alimentarea deșeurilor pe grătar trebuie să fie continuă și ajustată la capacitatea de transport a grătarului. Tehnologia noastră asigură un strat uniform de combustibil peste grătar, asigurând o producție constantă de energie și eficiență maximă.
Transport continuu de deșeuri fără înfundare
Proiectăm buncărele noastre de alimentare pentru a permite transportul continuu a deșeurilor la jgheabul răcit cu apă, fără a se înfunda, rezultând mai puține opriri și o funcționare mai consecventă a instalației.


Amortizoarele hidraulice asigură siguranța în timpul pornirii și opririi
În timpul pornirii și opririi instalației, sunt cuplate două amortizoare puternice, acționate hidraulic. Poziționate între jgheab și buncăr, aceste clapete se închid automat în cazul unei pene de curent și pot fi închise manual în cazul unui incendiu în jgheab.
Plăci de uzură modificabile=Costuri reduse de întreținere
Grătarul este alimentat cu o rată variabilă, adaptată producției de energie, prin intermediul unui împingător acționat hidraulic. Plăci de uzură modificabile acoperă partea frontală și superioară a împingătorului de alimentare. Părțile laterale ale jgheabului de alimentare răcit cu apă sunt protejate de plăci de fontă schimbătoare, extinzându-se până în partea de sus a împingătorului de alimentare, ceea ce ajută la reducerea costurilor de întreținere.


Flexibilitatea alimentării asigură eficiență optimă și uzură minimă
Mișcarea continuă și lentă a împingătorului de alimentare poate fi ajustată în funcție de producția de energie și controlul arderii, oferind o alimentare constantă și continuă a deșeurilor pe grătar. Acest lucru asigură o eficiență maximă și minimizează uzura.
caz de proiect
Orașul Ho Chi Minh, Vietnam, proiect de generare a energiei pentru incinerarea deșeurilor de 600 t/zi (proiect mare de generare a energiei pentru incinerarea deșeurilor)
Proiectul de generare a energiei de incinerare a deșeurilor de 600 t/zi din Ho Chi Minh City, Vietnam folosește cuptorul nostru cu grătar cu piston înclinat în trei trepte pentru tratarea zilnică a deșeurilor de 600 t/h, cu un set generator de boiler cu abur de 75 t/h +18MW. Proiectul este în prezent în construcție și este programat să fie pus în funcțiune în decembrie 2024.

Vă mulțumim că ați vizitat site-ul nostru web. Sperăm că puteți găsi produse care să corespundă nevoilor dumneavoastră. De asemenea, putem personaliza o soluție completă pentru dvs., în funcție de nevoile dvs. Vă rugămcontactaţi-ne.
Fiind unul dintre cei mai profesioniști furnizori de sisteme de alimentare cu combustibil din China, suntem caracterizați de produse de calitate și servicii bune. Vă rugăm să fiți sigur că cumpărați aici din fabrica noastră un sistem de alimentare cu combustibil de înaltă calitate fabricat în China.





